证书资质
项目案例
咨询服务
服务优势
国学课程
关于MBCS
联系MBCS
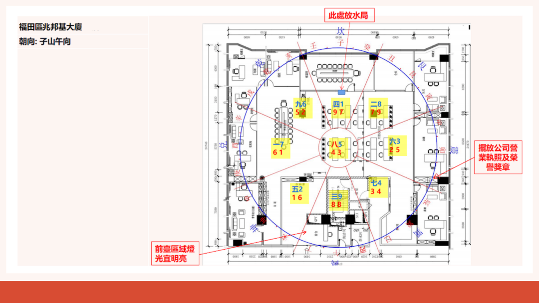
单一集团办公室
办公室/780㎡/深圳市
查看更多项目