证书资质
项目案例
咨询服务
服务优势
国学课程
关于MBCS
联系MBCS
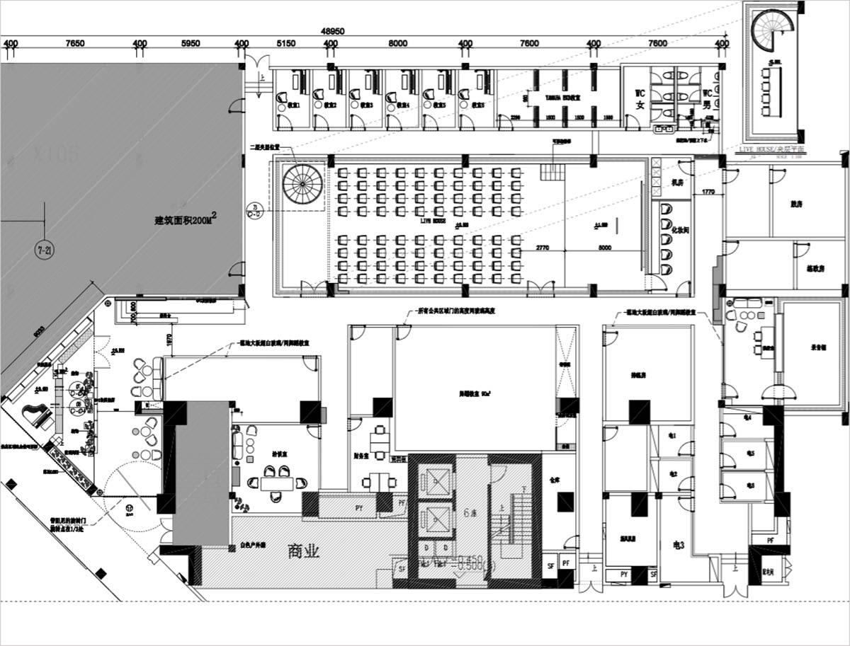
BandCity 班习
【中国演唱会级音乐复合体】 音乐娱乐/1083㎡/深圳市
查看更多项目